.jpg)
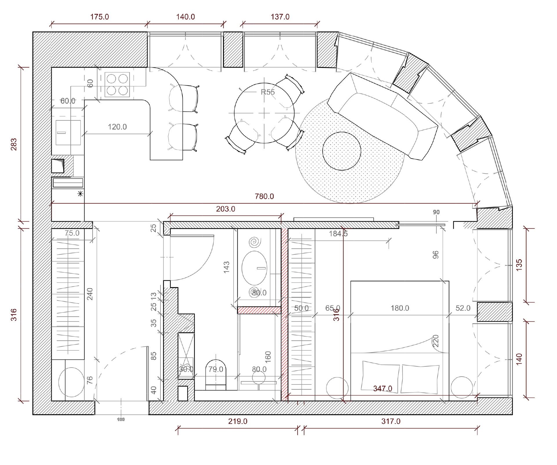
Sky View is a commissioned project located in a modern high-rise building in Moscow, Russia. Designed as a student apartment, the owners wanted a design that combines high-quality, luxurious elements with thoughtful, practical furnishings and a cohesive color scheme. The result is a sophisticated living space where elegance and simplicity seamlessly merge with functional design and refined style.






.jpg)






