
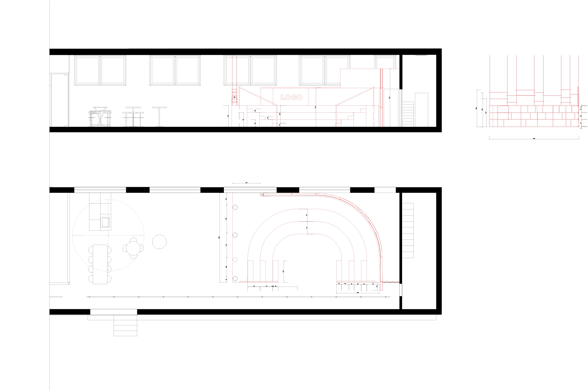
For the new showroom of Alpwea, a South Tyrolean manufacturer of high-quality aluminum building envelopes, sustainable reuse was the core of the design concept. The rounded wall of the room is clad with metal panels from a former trade fair booth of the company Vitralux — a clear statement for resource-conscious construction and distinctive design.
The central tiered seating, made from painted OSB panels, is deliberately styled like a startup space. It accommodates around 60 people but feels less bulky thanks to the integrated shelving wall on its backside. At the same time, this area doubles as a display for samples — functional and visually intertwined. Small compartments are designed to hold plants and flower pots, where climbing plants grow and wind around the wire structures of the shelving system. These suspended shelves further structure the space, act as a safety barrier, and create a visual boundary.
The second part of the showroom — with additional sample shelves — is currently in planning and execution.
