American Heritage, Modern Elegance
New Hartford
2025
Alex Walcher, Nikls Riedl

The Ovation Guitar Company — based in New Hartford, CT since 1966 — is renowned for its "Roundback" acoustic guitars made of the high-tech material Lyrachord, known for their powerful, balanced sound that has become a benchmark in the industry. Since 2020, the iconic brand has been part of German-based GEWA music GmbH, where it continues to evolve.
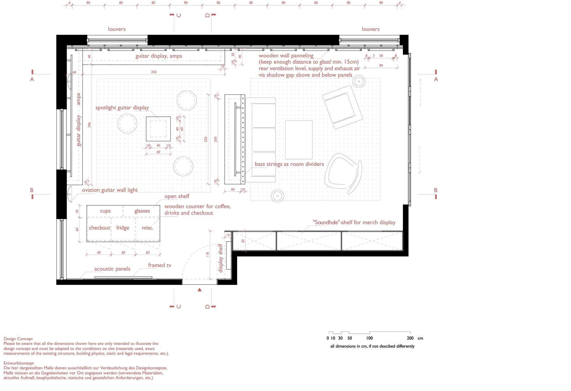
For their shared brand presence, a hybrid showroom was created on site: simultaneously an exhibition space, merchandise boutique, and rehearsal room — a meeting place where guitars can not only be seen, but truly experienced.
Acoustics & Presentation
A full-height slatted wall optimizes reverberation time, creating a warm sound profile. Opposite, a paneled display wall with integrated LED strips highlights each guitar like a one-of-a-kind piece — inspired by classic American wood paneling, but framed precisely in contemporary black steel.
Retail & Lounge
A custom-built shelving wall holds sweaters, t-shirts, and other merchandise. Recessed compartments keep the space feeling open and airy. In front, cozy sofas and a low coffee table invite visitors to listen and relax.
Counter as Focal Point
The minimalist checkout counter also serves as a barista station — combining consultation, retail, and coffee enjoyment, while emphasizing the space’s high-end yet relaxed atmosphere.
In this way, distinctive American design codes — dark wood and leather furniture — merge with modern minimalism. The result is an elegant space that clearly communicates the values of GEWA and Ovation: craftsmanship, sound quality, and a deep passion for music.





