60s Charm Reinterpreted
Rapallo
2025
Alex Walcher

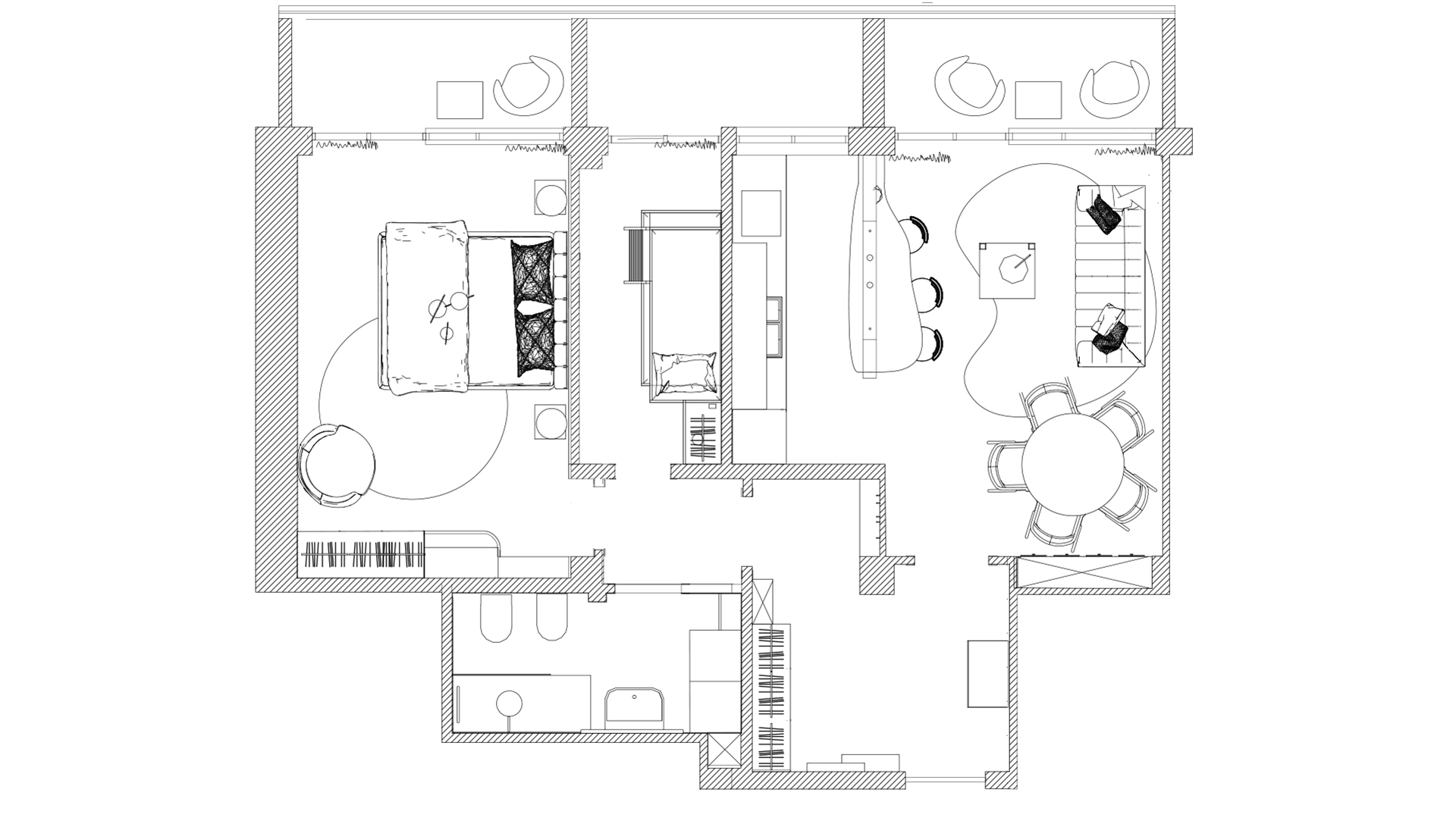
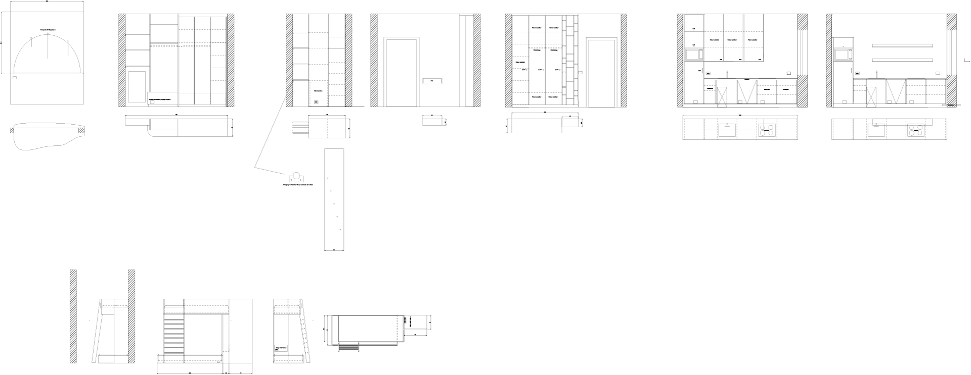
Located in the historic center of Rapallo, just steps from the beach, this 1960s apartment is currently undergoing careful full renovation. The aim is to preserve the charm and character of the original architecture while translating it into a new, contemporary form.
The original floors are being retained, continuing to tell the story of the space. The bathroom tiles, with their typical style and handcrafted details, are also preserved where possible and integrated into the new design.
The interior design draws inspiration from the 60s aesthetic but doesn’t stop there: a vintage look with modern accents gives the apartment fresh elegance and authenticity.
The color scheme is inspired by the surroundings: the vibrant lightness of the Ligurian villages, the warm Riviera light, and the proximity to the Cinque Terre are reflected in a palette of terracotta and earthy tones — grounded, inviting, Mediterranean.
A holiday apartment that is not only modernized but brought back to life — in dialogue with its past and the colorful Ligurian landscape.


















