Holiday Apartment in Lugana
Lugana
2024
Alex Walcher

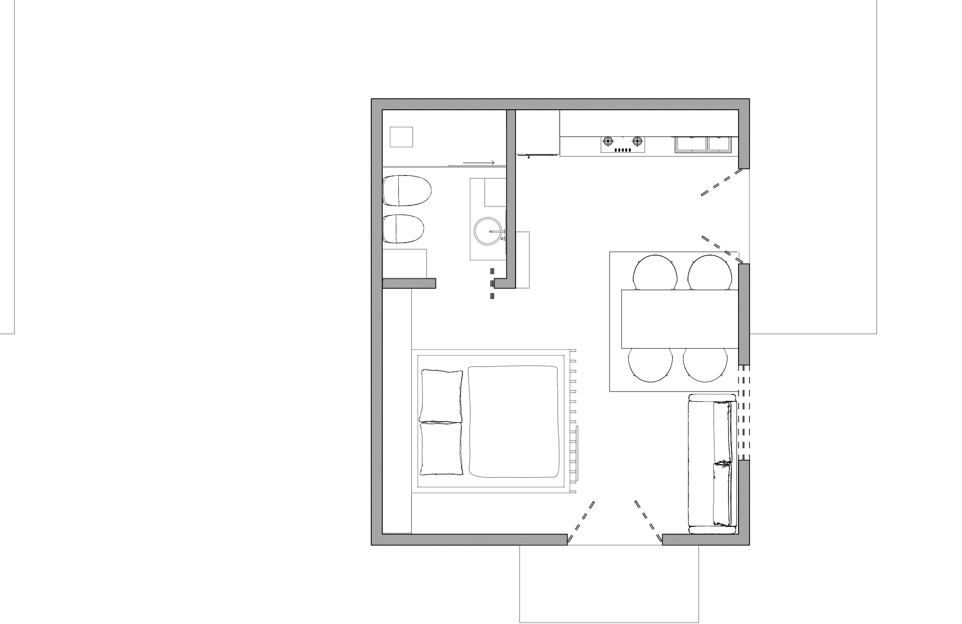
Federico’s Apartment was renovated following the completion of the first unit. The owner’s wish to take inspiration from the style of Apartment 1 played a central role in shaping the concept. That same clear and cozy look had already proven successful with guests: practical, inviting, and unpretentious — a place to arrive and feel at home.
Particular attention was given to the furnishing: instead of a traditional wardrobe, an open closet element was chosen, complemented by spacious bedside tables that also serve as convenient luggage surfaces. Since many guests don’t fully unpack anyway, this solution reflects actual user behavior and adds to the sense of openness and lightness in the room. At the same time, it creates a functional and visually appealing feature that integrates discreetly into the overall design.
A room divider at the foot of the bed with an integrated TV is already planned and will be implemented in a next step — another contribution to comfort and a homely atmosphere within a compact space.
